
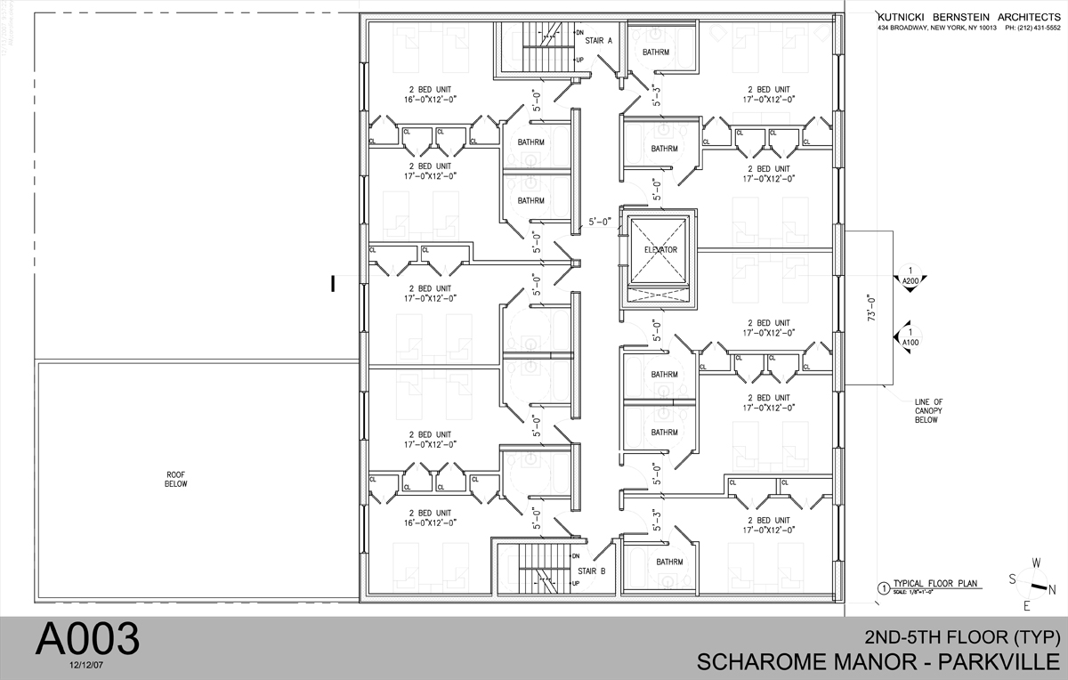
Proposal for a new structure adding 80 new beds adjacent to an existing structure by the same owner. I was responsible for the feasibility and zoning analysis, design, and drawings with oversight by Lawrence Kutnicki, AIA and Omar Hernandez, AIA.

Proposal for a new structure adding 80 new beds adjacent to an existing structure by the same owner. I was responsible for the feasibility and zoning analysis, design, and drawings with oversight by Lawrence Kutnicki, AIA and Omar Hernandez, AIA.